Prodaje se garsonjera u izgradnji 35m2, Tološi

  • 87,500€
Tološi, Podgorica

Prodaje se garsonjera u izgradnji 35m2, Tološi

Tološi, Podgorica
  • 87,500€

Opis

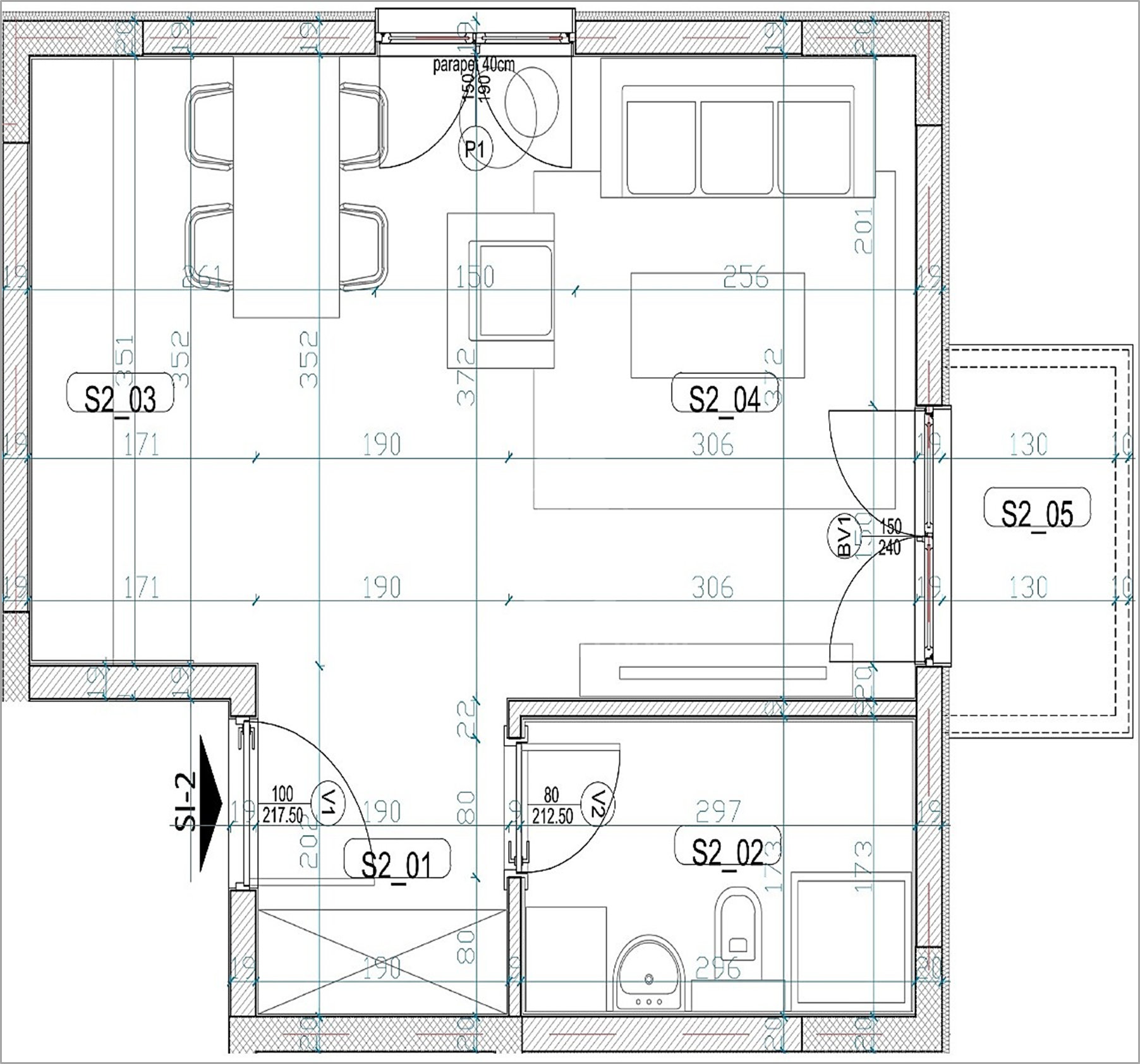
Prodaje se garsonjera u izgradnji ukupne stambene površine 35m2 na prvom spratu u manjoj i luksuznoj stambenoj zgradi u Tološima. Zgrada će imati četrnaest stanova raspoređenih na prizemlju i tri sprata. Projektovana sa posebnom pažnjom na funkcionalnost, udobnost i estetiku, ova manja stambena zgrada nudi savršen balans između privatnosti i urbanosti.Kvadrature stanova kreću se od 34 m² do gotovo 49 m²,sa optimalnim rasporedom prostorija i velikim akcentom na funkcionalnost i prirodno osvjetljenje. Svaki stan je projektovan tako da se maksimalnoiskoristi prostor, stvarajući ambijent u kojem se osjećate prijatno i opušteno. Radovi teku planiranom dinamikom, a završetak radova predviđen je za septembar 2026 godine.

Detalji

  • ID nekretnine: ID-33840
  • Cijena: 87,500€
  • Kvadratura: 35 m2
  • Soba: garsonjera
  • Tip nekretnine:   Stan
  • Namjena: Izdvajamo iz ponude, Prodaja

Pregled

ID nekretnine: ID-33840
  •   Stan
  • Tip nekretnine
  • garsonjera
  • Soba
  • 35
  • m2

Compare listings

Compare
Slavica Popovic
  • Slavica Popovic
Translate